Baerz & Co is een landelijk samenwerkingsverband van zorgvuldig geselecteerde boutique luxury makelaars. Samen vormen wij één netwerk, met één gedeeld aanbod. De woningen die u op onze website ziet, zijn afkomstig van alle aangesloten kantoren binnen Baerz & Co. Daardoor is niet ieder object rechtstreeks door ons kantoor in verkoop, maar door een gespecialiseerde collega binnen ons netwerk. Heeft u een woning gevonden die u aanspreekt en wilt u meer informatie? Dan brengen wij u graag persoonlijk in contact met de betreffende verkoopmakelaar, zodat u direct en zorgvuldig wordt begeleid.

'S-HERTOGENBOSCH
Kruisstraat 16 - 5211 DV
Netherlands

Jan Paul van Daal profile image
Jan Paul van Daal
Real Estate Agent
€1,650,000
Living Area
350m2
Plot Size
171m2
Bedrooms
4

Description

Large shop/residential home that pays for itself.

In Uilenburg, the coziest neighborhood in the center of 's-Hertogenbosch, you will find perhaps the most unique townhouse in the city. Not only because of its size, but above all because of the atmosphere and the possibilities. It is a residential and commercial property where both functions have their own separate entrance. This makes renting out the shop, with a wonderful rental yield, very attractive indeed. In fact, this tenant will soon be paying your mortgage.

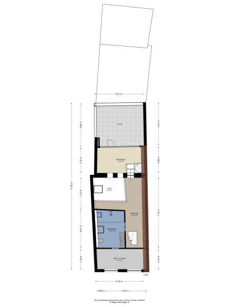
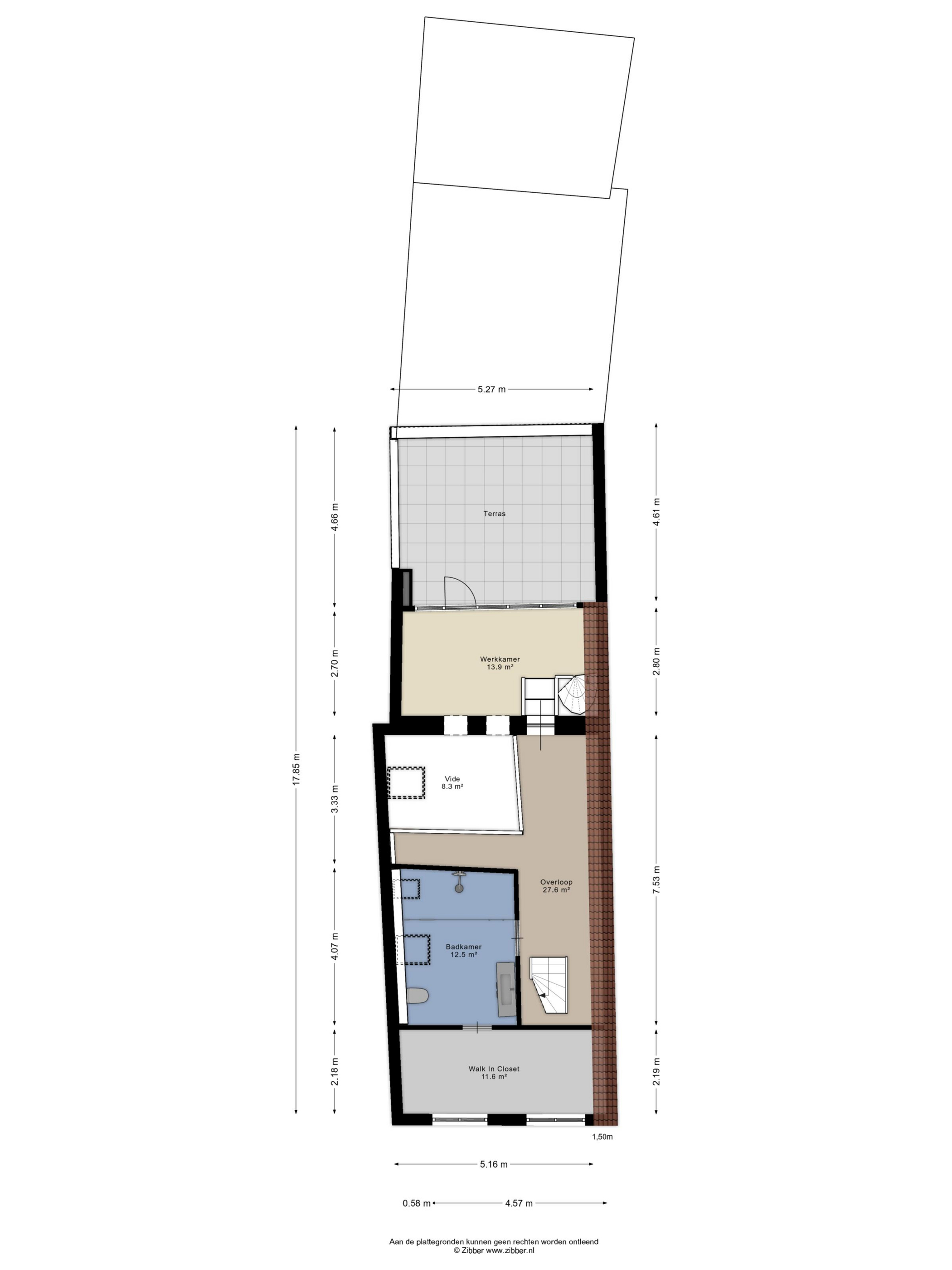
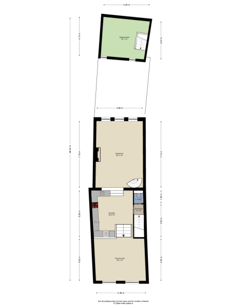
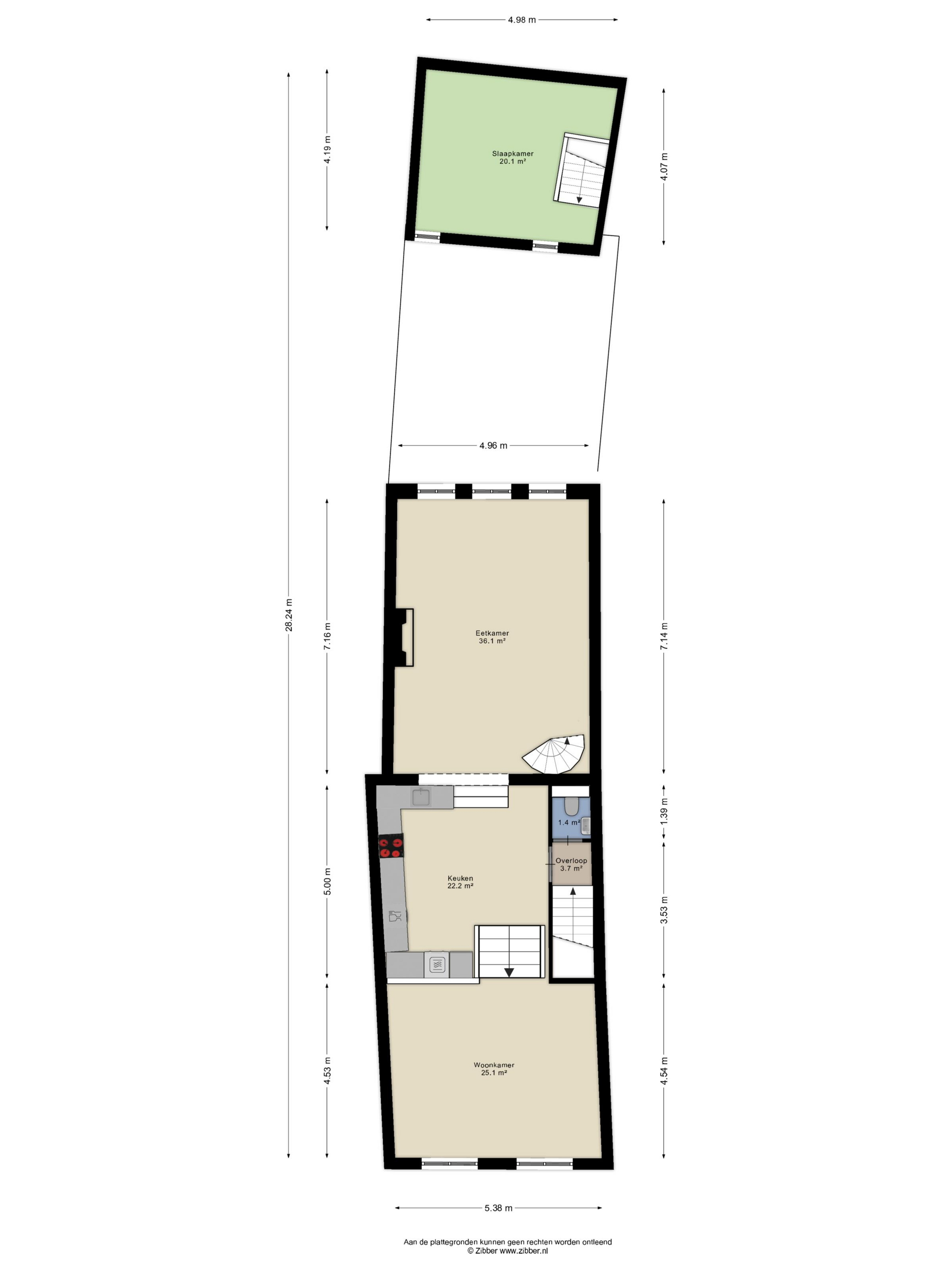
The property features a large, barrel-vaulted cellar, suitable for children or a B&B, for example; an "Ibiza"-style covered courtyard; a rear house; and a very spacious upper house with a roof terrace facing the afternoon and evening sun.

This is the home where you can live with a large family. This is also the home where you live affordably yourself thanks to the rental income from the shop. And this is the home for anyone who has always wanted to start a B&B. But above all, this is the home that embraces you in the nicest part of the city center.

It is a large and surprising house. You will only get a good idea of ??this during a tour. So call soon to make an appointment: (073) 612 22 25

Features

Transfer of ownership
Asking Price
€ 1.650.000
Status
beschikbaar
Acceptance
in overleg
Construction
Kind of house
Herenhuis
Building type
tussenwoning
Construction period
1606
Roof type
zadeldak
Bedrooms
4
Bathrooms
3
Surface Areas And Volume
Living Area
350 m2
Other indoor space
0 m2
Exterior space attached to the buildinge
22 m2
Volume in cubic meters
1461 m3
Plot Size
171 m2
Facilities
Mechanische ventilatie
In centrum
Baerz & Co Property Brochure

Brochure

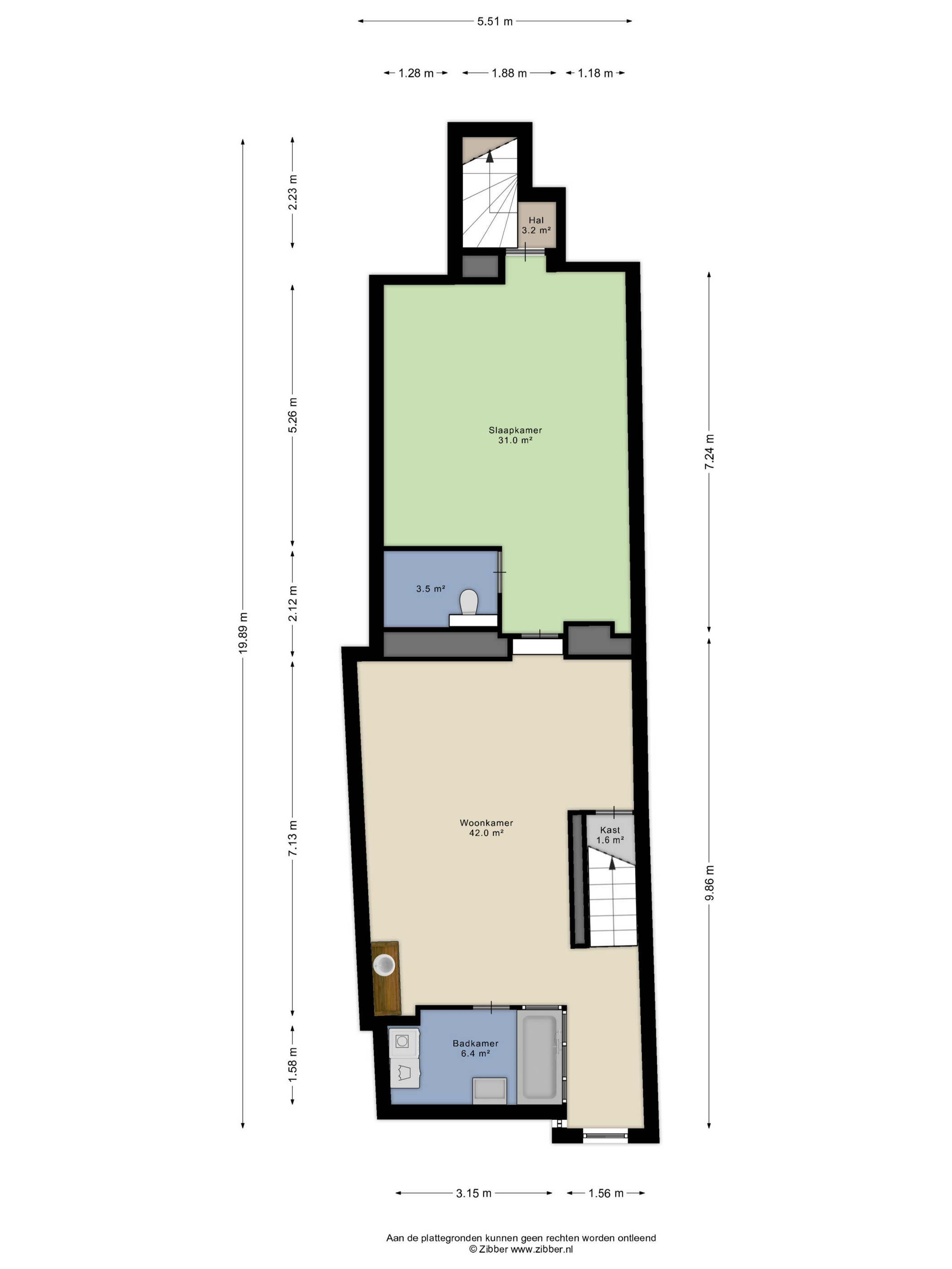
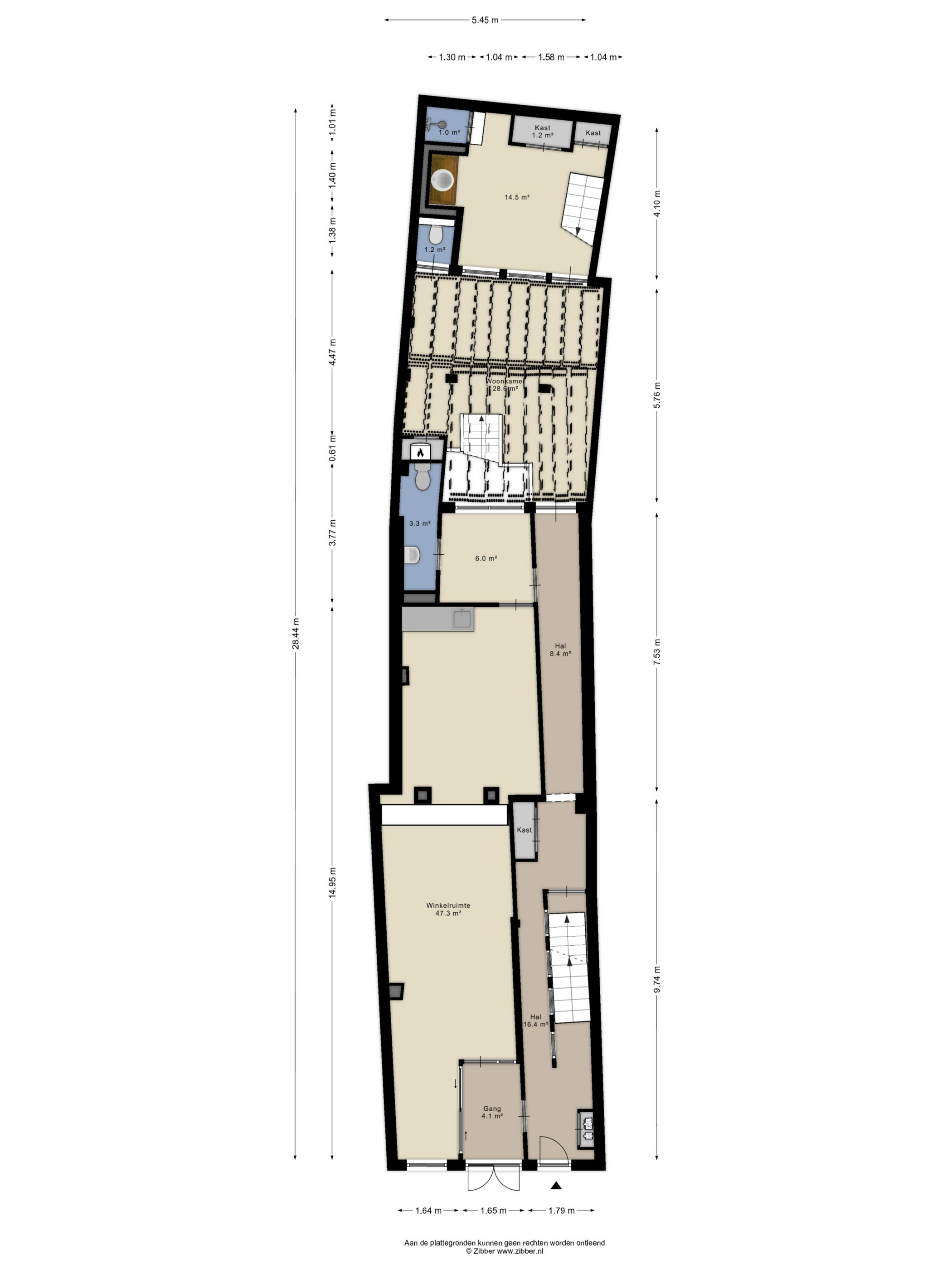
Floor Plans

Van Daal Makelaardij - Rijswijk

Heemraadstraat 4
2288 GX Rijswijk

janpaul@vandaalmakelaardij.nl
+31 70 2042288

www.vandaalmakelaardij.nl

Information / Viewing request

Jan Paul van Daal profile image
Jan Paul van Daal
Real Estate Agent

Buying a Luxury Property in 's-Hertogenbosch

's-Hertogenbosch offers a refined blend of history, culture, and contemporary living, attracting a globally minded community who value privacy, aesthetics, and seamless services within a vibrant, authentic Dutch environment.