Baerz & Co is een landelijk samenwerkingsverband van zorgvuldig geselecteerde boutique luxury makelaars. Samen vormen wij één netwerk, met één gedeeld aanbod. De woningen die u op onze website ziet, zijn afkomstig van alle aangesloten kantoren binnen Baerz & Co. Daardoor is niet ieder object rechtstreeks door ons kantoor in verkoop, maar door een gespecialiseerde collega binnen ons netwerk. Heeft u een woning gevonden die u aanspreekt en wilt u meer informatie? Dan brengen wij u graag persoonlijk in contact met de betreffende verkoopmakelaar, zodat u direct en zorgvuldig wordt begeleid.

MIJDRECHT
Tienboerenweg 22 A - 3641 RA
Netherlands

€878,000
Living Area
172m2
Plot Size
2015m2
Bedrooms
2

Description

Are you looking for a place where every day feels like you’re living outdoors, surrounded by peace, space, and greenery?

Then this detached home on a generous plot of no less than 2,015 m² is exactly what you’re looking for. With unobstructed views at both the front and rear, an expansive garden, a large barn, and several outbuildings, this is a unique opportunity for lovers of countryside living. And all of this in a surprisingly central location: Uithoorn and Mijdrecht are just around the corner, and cities such as Amstelveen, Amsterdam, Hilversum, and Utrecht are easily accessible within a short time.

The layout of this unique and charming home is as follows:

Via the long driveway, you reach the property. Parking is, of course, no issue here, and you immediately experience the tranquility of rural living.

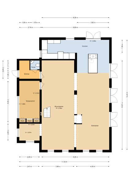
GROUND FLOOR
Upon entering the hallway, you will find a wardrobe closet, a toilet with washbasin, and access to the living room. As soon as you step into the very spacious U-shaped living room, you immediately notice the abundance of space and natural light this home has to offer. Thanks to the side extension, a generous living area has been created where multiple seating and living areas can easily be arranged.

The four sets of French doors to the garden ensure a seamless transition between indoors and outdoors. On sunny days, you can open everything up, making the garden feel like an extension of your living room—a wonderful sense of freedom.

The large fireplace with wood-burning stove forms the warm heart of the space, while the wooden ceiling beams add to the charming, country-style atmosphere. In addition, a separate corner has been created, currently set up as a home office—ideal for working from home or as a quiet reading or hobby space.

The open kitchen is spacious and fully equipped. The large cooking island with ample drawers offers plenty of workspace and storage, while the cabinet wall provides additional storage. The kitchen is fitted with a gas stove with extractor hood, a convection oven, refrigerator, and dishwasher. A practical detail: the washing machine, dryer, and central heating boiler are neatly concealed within various kitchen cabinets.

From the living room, the ground floor bedroom is accessible. This room features two built-in wardrobes and offers plenty of possibilities: from a comfortable master bedroom to a guest room or workspace.

FIRST FLOOR
The staircase in the living room leads to the first floor. Here you will find a spacious bedroom with two large built-in wardrobes, ideal for those who require plenty of storage space.

The bathroom, located at the rear of the house, is fully equipped. Here you can enjoy a spacious walk-in shower with rain shower, a luxurious whirlpool bathtub, a toilet, a double vanity unit, and a towel radiator. A perfect place to start or end your day in relaxation.

GARDEN
The garden surrounding the home is well maintained and offers ample space to enjoy outdoor living. With a playful layout of gravel, lawn, and terrace, there is always a spot to be found in the sun or shade. The large plane trees provide cooling on warm days and give the garden a distinctive character.

Whether you want to garden, relax, play, or host extensive dinners with friends and family, it’s all possible here.

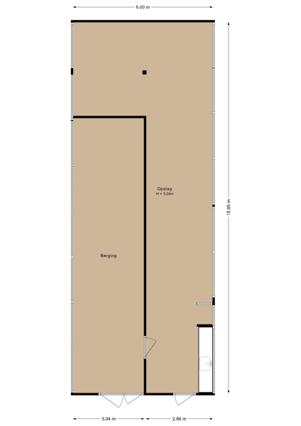
OUTBUILDINGS
The large barn is a dream for hobbyists, entrepreneurs, or anyone simply in need of a lot of space. The barn is divided into two sections: the left side is accessible via double doors, ideal for larger objects or vehicles, while the right side has a separate entrance door and is internally connected to the other section. At the rear of the garden, there is an additional shed, perfect for storage or as a workspace.

In addition, there is a large greenhouse, which can be used for various purposes. Naturally suitable for growing plants and vegetables, but with some adjustments also ideal as a studio, atelier, or home office. An inspiring space with plenty of potential!

This property offers everything you are looking for: space, freedom, character, and versatility. An ideal place for those who wish to live in the countryside and dream of a large plot with countless possibilities.

A unique opportunity to turn your housing wishes into reality—come and experience it for yourself!

LOCATION
The property is situated in the rural area of Mijdrecht, approximately 5 km from the lively town center and near major roads. The N201 is a short distance away, and Amstelhoek/Uithoorn is located about 1 kilometer from the property. Within 30 minutes, you can reach the centers of Amsterdam and Utrecht. Amstelveen, Breukelen (train station), and Schiphol Airport are even closer.

Mijdrecht itself offers all amenities at a town level, including shops, sports facilities, schools, and a variety of restaurants and cafés.

There are also plenty of recreational opportunities in the immediate surroundings, including cycling, boating, and walking routes in De Ronde Venen, as well as the nearby Vinkeveense Plassen recreational area. In short, a beautiful and dynamic environment in the heart of the Green Heart.

Curious about this charming home? Schedule a viewing with one of our agents—we would be delighted to introduce you to this special place!

Interested in this property? Engage your own NVM purchasing agent right away.
An NVM purchasing agent represents your interests and can save you time, money, and concerns.
You can find addresses of fellow NVM purchasing agents in Utrecht on Funda.

Mijdrecht is geographically located in the center of the Green Heart, just 20 minutes by car from Amsterdam, Hilversum, Utrecht, and Schiphol. Within 45 minutes, you can also reach The Hague, Amersfoort, or Alkmaar—making it a perfectly central location in the Netherlands.

The town offers a wide range of amenities, including a library, swimming pool, sports hall, primary and secondary schools, cultural activities, a jazz and literary café, various (sports) clubs, a strong retail offering, and a vibrant town center where events are organized throughout the year at the well-known Raadhuisplein.

Mijdrecht has over 16,500 inhabitants and is part of the municipality of De Ronde Venen, which consists of eight villages: Abcoude, Amstelhoek, Baambrugge, De Hoef, Mijdrecht, Vinkeveen, Waverveen, and Wilnis. The municipality is known for its green and water-rich landscape, offering many opportunities for recreation, relaxation, and enjoying peace, space, and nature.

Features

Transfer of ownership
Asking Price
€ 878.000
Status
beschikbaar
Acceptance
in overleg
Construction
Kind of house
Eengezinswoning
Building type
vrijstaande woning
Construction period
1960
Energy rating
D
Roof type
mansarde dak
Bedrooms
2
Bathrooms
1
Surface Areas And Volume
Living Area
172 m2
Other indoor space
0 m2
External storage space
160 m2
Volume in cubic meters
579 m3
Plot Size
2015 m2
Facilities
Rookkanaal
Natuurlijke ventilatie
Aan rustige weg
Vrij uitzicht
Buiten bebouwde kom
Landelijk gelegen
Baerz & Co Property Brochure

Brochure

Floor Plans

Van Daal Makelaardij - Delft

Voldersgracht 33
2611 EV Delft

janpaul@vandaalmakelaardij.nl
+31 15 212 73 00

www.vandaalmakelaardij.nl

Information / Viewing request

Jan Paul van Daal profile image
Jan Paul van Daal
Real Estate Agent

Buying a Luxury Property in Mijdrecht

Mijdrecht offers refined living within a discreet community, ideal for global buyers seeking tranquility, robust services, and direct access to the cultural and economic dynamism of the region.