Ons kantoor is lid van Baerz & Co Luxury Homes; een internationaal platform dat exclusieve woningmakelaars met elkaar verbindt. Neem contact op met ons secretariaat voor meer informatie over het landelijke aanbod, waarvan u hieronder een selectie kunt bekijken.

Apartment for sale in Rhenen

Rhenen Hofstraat 6 - 3911 KX The Netherlands


Wistik Zonnenberg profile image
Wistik Zonnenberg
Real Estate Agent
+31 318 559600
info@zonnenbergmakelaardij.nl

Zonnenberg Makelaardij
Kerkewijk 108
3904 JG Veenendaal
NETHERLANDS
+31 318 559600
www.zonnenbergmakelaardij.nl
info@zonnenbergmakelaardij.nl

Living area
240m2
Plot size
217m2
Bedrooms
3

Description

Luxury Penthouse with Private Parking Garage and City Garden

Located on a quiet and charming street in the vibrant heart of Rhenen, this unique and generously sized penthouse features a private city garden, a private parking garage on the ground floor, two parking spaces in front of the penthouse, and an internal lift. This exclusive residence offers the comfort and luxury of a penthouse combined with the space and flexibility of a multi-level home.

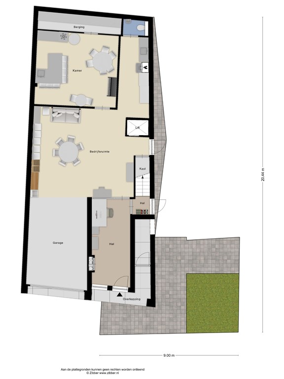
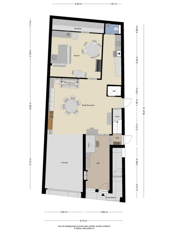
Ground Floor

Upon entry, you’ll find a multifunctional space that can serve perfectly as an informal care apartment or as an office/business space. The ground floor is particularly versatile, not least because a self-contained apartment can easily be created here. All necessary connections are already in place, allowing for a quick and hassle-free layout. The property is fully wheelchair accessible thanks to step-free access and the presence of a lift, ensuring optimal comfort and accessibility.
Adjacent is the spacious garage, accessible via an electric overhead door, with room for multiple cars. At the rear of the garage you’ll find a practical kitchenette and a toilet with washbasin.

First Floor

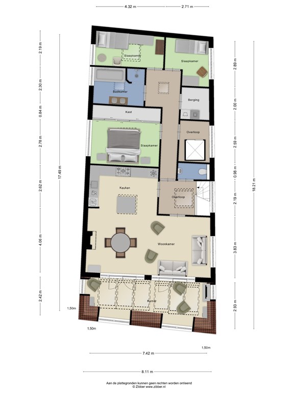
On the first floor, you reach the hall via the stairs or the lift. From the hall, you enter the generous living area with open kitchen, finished with a stylish natural stone floor. The kitchen island offers more than enough workspace and a lovely outlook over the dining area. The open-plan kitchen features a modern island and is fitted with luxury appliances, including a Boretti gas range.
Large glass doors lead to an additional room that can be used as a sitting room or conservatory. Thanks to the skylight and large windows, there is abundant natural light. The windows are fitted with electric screens. At the rear of the property are three bedrooms and a luxury bathroom. All rooms are equipped with air conditioning.

Bathroom & Sanitary

The spacious bathroom provides multiple facilities for complete relaxation. There is a generous rain shower and a comfortable whirlpool bath in which to unwind after a long day. The vanity unit features a double washbasin, giving you plenty of space to start the day together.
The bathroom also has underfloor heating, ensuring a pleasant temperature even in the colder months. All sanitary ware is top quality and executed in a modern style that fits perfectly with the rest of the home. Attention to detail and the use of high-grade materials make the sanitary spaces not only functional, but a true luxury experience.

Garden

The sunny city garden, ideally south-facing, offers ample opportunities to enjoy long summer days. Thanks to its favorable orientation, you benefit from sunlight throughout the day, making it a delightful place to relax, dine, or spend time with family and friends. The garden is largely tiled, which not only creates a modern, sleek look but also keeps maintenance to a minimum—so you can enjoy your outdoor space year-round with little effort. The garden features an outdoor fireplace and a BBQ.
The tiled terrace offers more than enough space for multiple seating areas. You might create a comfortable lounge corner for relaxing evenings, or place a generous dining table for summer dinners in the open air. In addition to the tiled sections, there is an attractive artificial lawn—perfect for children to play on or for pets to run around. This patch of green adds a playful element and creates a natural transition to the more functional parts of the garden.

General Information

- Property type: Penthouse
- Year of construction: 2005
- Number of rooms: 6
- Number of bedrooms: 3
- Number of bathrooms: 1
- Parking: Indoor garage and two spaces in front of the property
- Features: Storage room, garage, passenger lift, and enclosed city garden
- Garden orientation: South/West
- Garden access: Side entrance

Technical Details

- Hot water: New Remeha combi boiler
- Heating: New Remeha combi boiler and additional heater
- Underfloor heating: Present
- Solar panels: 12
- Features: Air conditioning throughout the floor / external sun shading via screens
- Mechanical ventilation: Present
- Insulation: Roof / cavity walls / floor
- Double glazing: Entire property
- Connections: Fiber-optic cable and TV cable
- Window frames: Wood

Would You Like to Take a Look Inside?

For more information about this property, please contact our office in Rhenen.

You are most welcome! The best impression of this home is, of course, gained during a viewing. We schedule viewings in consultation with both seller and buyer and take ample time, so you can explore and experience the property at your leisure.

Note: The utmost care has been taken in compiling this information. No rights can be derived from any inaccuracies or omissions in the data or drawings provided.

Features

Transfer of ownership
price
€ 875.000 k.k.
Status
Available
Acceptance
In Concert
Reference
08077
Construction
Kind of house
Apartment
Building type
Penthouse
Construction period
2005
Energy rating
B
Roof type
composite
Bedrooms
3
Bathrooms
1
Surface Areas And Volume
Living area
240 m2
Other indoor space
23 m2
Exterior space attached to the building
10 m2
Volume in cubic meters
931 m3
Plot size
217 m2
facilities
Airco
Alarm
Cable Tv
Elevator
Fluetube
Not Furnished
Garage
Garden
Internetconnection
Outdoorawnings
Phoneline
Skylight
Not Upholstered
Ventilation
Baerz & Co Property Brochure

Brochure

Information / Viewing request

Videos

Photos

Floor Plans