Baerz & Co is een landelijk samenwerkingsverband van zorgvuldig geselecteerde boutique luxury makelaars. Samen vormen wij één netwerk, met één gedeeld aanbod. De woningen die u op onze website ziet, zijn afkomstig van alle aangesloten kantoren binnen Baerz & Co. Daardoor is niet ieder object rechtstreeks door ons kantoor in verkoop, maar door een gespecialiseerde collega binnen ons netwerk. Heeft u een woning gevonden die u aanspreekt en wilt u meer informatie? Dan brengen wij u graag persoonlijk in contact met de betreffende verkoopmakelaar, zodat u direct en zorgvuldig wordt begeleid.

'S-GRAVENHAGE
Prinsestraat 37 F - 2513 CA
Países Bajos

€1,580,000
Superficie habitable
201m2
Tamaño del terreno
116m2
Dormitorios
3

Descripción

La villa urbana de La Haya es una residencia extraordinaria situada entre Prinsestraat y Noordeinde, que encierra un fragmento raro de historia local en pleno corazón de la ciudad. Este antiguo establo de la estación de bomberos, cuya construcción data de 1899, fue completamente renovado en 2018, fusionando detalles arquitectónicos originales con el confort contemporáneo. El resultado es una vivienda casi independiente y luminosa, que ofrece privacidad y carácter.

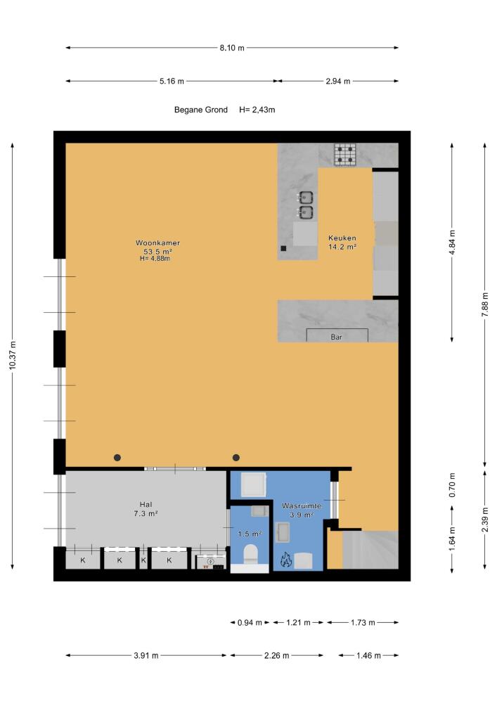
Con una superficie habitable de 201 m², la propiedad cuenta con tres amplios dormitorios y dos modernos cuartos de baño, distribuidos en niveles cuidadosamente diseñados. El impresionante salón, de aproximadamente 70 m², se distingue por sus techos altos, altillo abierto y grandes ventanales que dejan entrar la luz natural. Las puertas francesas conducen a una terraza privada en la planta baja, orientada al sur, que realza la sensación de amplitud y conexión con el exterior. Además, la soleada terraza en la azotea ofrece vistas panorámicas del perfil urbano de La Haya.

La cocina, situada en el corazón de la vivienda, es sofisticada y está equipada con electrodomésticos integrados. El confort es prioritario en toda la casa, con suelos de parquet de roble, calefacción por suelo radiante y certificación energética clase A. El acceso seguro garantiza discreción, y los residentes disponen de aparcamiento subterráneo cerca de los jardines del palacio.

Ubicada en el centro de la ciudad, la villa se encuentra a pocos pasos de arte, teatro, boutiques y reconocidos restaurantes. La propiedad es en régimen de pleno dominio y está reconocida como Monumento Nacional, lo que refuerza su calidad atemporal. Esta propiedad invita a experimentar un estilo de vida íntimo en pleno centro, en un entorno distinguido y privado.

Explora La Haya con Baerz, Tu Buscador y Asesor Personal de Propiedades de Confianza

Las propiedades más exclusivas de la ciudad suelen permanecer fuera del mercado público y requieren contactos internos y negociaciones expertas. Asesores locales experimentados ofrecen acceso a estas oportunidades discretas, gestionan operaciones transfronterizas complejas y protegen intereses en entornos legales y fiscales. Su valor reside en la gestión de matices – desde protección del patrimonio hasta preferencias privadas de los vendedores – asegurando la vivienda y condiciones óptimas para cada cliente.

Evita los errores comunes

Los compradores internacionales a menudo pierden tiempo valioso en listados en línea duplicados, desactualizados o engañosos, especialmente porque casi el 30% de las casas de lujo nunca aparecen en el mercado público. Los agentes del vendedor representan los intereses del vendedor, no los del comprador. Incluso solicitar información sobre una propiedad puede resultar en que un agente del vendedor te registre como su “cliente” sin tu consentimiento.
Con Baerz Property Finders & Advisors, evitas por completo todos estos errores. Trabajamos únicamente en tu nombre, ofreciendo representación independiente, orientación clara y acceso a todas las propiedades disponibles, incluidas oportunidades fuera del mercado que otros nunca llegan a ver.

¿Interesado en un Asesor Personal de Propiedades?

Te mostramos todas las casas disponibles en un solo lugar. No dudes en contactarnos para saber cómo podemos satisfacer tus necesidades y proteger tus intereses exclusivamente.

Características

Transferencia de propiedad
Precio solicitado
€ 1.580.000
Estado
beschikbaar
Aceptación
in overleg
Construcción
Tipo de casa
Herenhuis
Tipo de edificio
geschakelde woning
Periodo de construcción
1938
Calificación energética
A
Dormitorios
3
Baños
2
Superficies y Volumen
Superficie habitable
201 m2
Otro espacio interior
2 m2
Espacio exterior adjunto al edificio
18 m2
Volumen en metros cúbicos
820 m3
Tamaño del terreno
116 m2
Instalaciones
In centrum
Beschutte ligging
Baerz & Co Property Brochure

Folleto

Vídeos

Van Daal Makelaardij - Delft

Voldersgracht 33
2611 EV Delft

janpaul@vandaalmakelaardij.nl
+31 15 212 73 00

www.vandaalmakelaardij.nl

Solicitud de información / Visita

Jan Paul van Daal profile image
Jan Paul van Daal
Real Estate Agent

Comprar una propiedad de lujo en La Haya

La Haya ofrece una comunidad sofisticada, una red global y reconocidas instituciones culturales. Los residentes disfrutan de servicios premium, entornos elegantes y acceso inmediato a comodidades internacionales, todo ello en un entorno urbano discreto y seguro.