Baerz & Co is een landelijk samenwerkingsverband van zorgvuldig geselecteerde boutique luxury makelaars. Samen vormen wij één netwerk, met één gedeeld aanbod. De woningen die u op onze website ziet, zijn afkomstig van alle aangesloten kantoren binnen Baerz & Co. Daardoor is niet ieder object rechtstreeks door ons kantoor in verkoop, maar door een gespecialiseerde collega binnen ons netwerk. Heeft u een woning gevonden die u aanspreekt en wilt u meer informatie? Dan brengen wij u graag persoonlijk in contact met de betreffende verkoopmakelaar, zodat u direct en zorgvuldig wordt begeleid.

'S-HERTOGENBOSCH
Kruisstraat 16 - 5211 DV
Países Bajos

€1,650,000
Superficie habitable
412m2
Tamaño del terreno
171m2
Dormitorios
4

Descripción

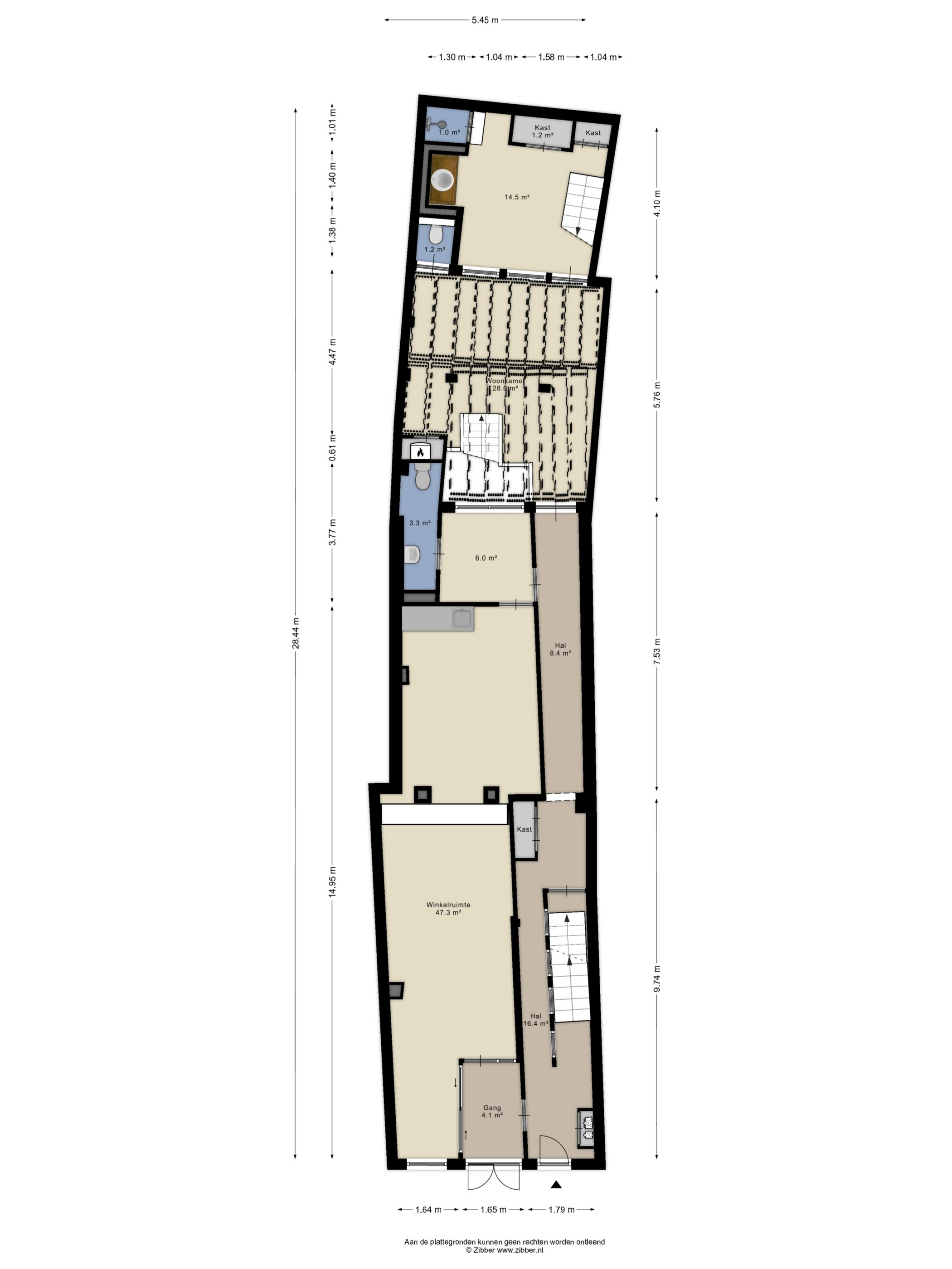
Esta casa adosada en 's-Hertogenbosch ofrece una atractiva combinación de potencial residencial y comercial en el corazón de Uilenburg, uno de los barrios más acogedores de la ciudad. Esta propiedad se distingue por contar con dos accesos independientes, lo que permite separar claramente la zona comercial de la vivienda principal. La posibilidad de obtener una sólida rentabilidad a través del local comercial incrementa el atractivo financiero, facilitando un estilo de vida donde el confort residencial y la generación de ingresos se equilibran.

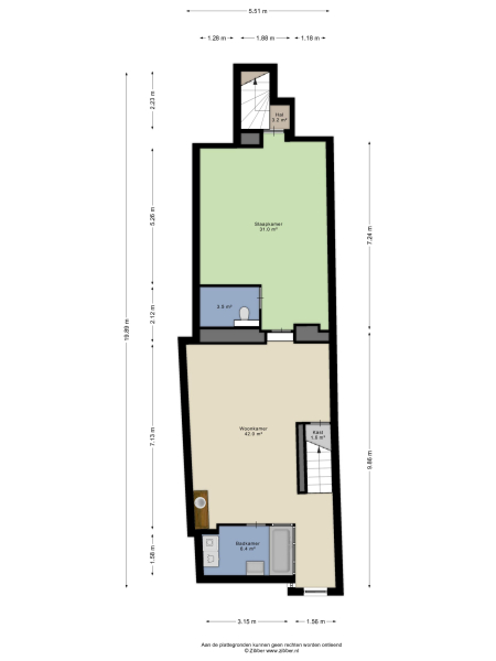
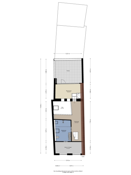
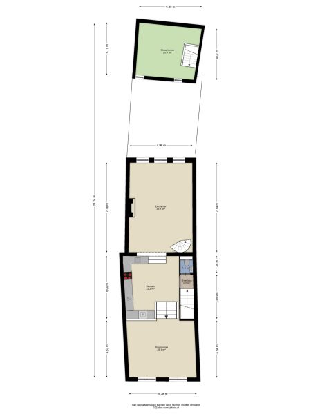
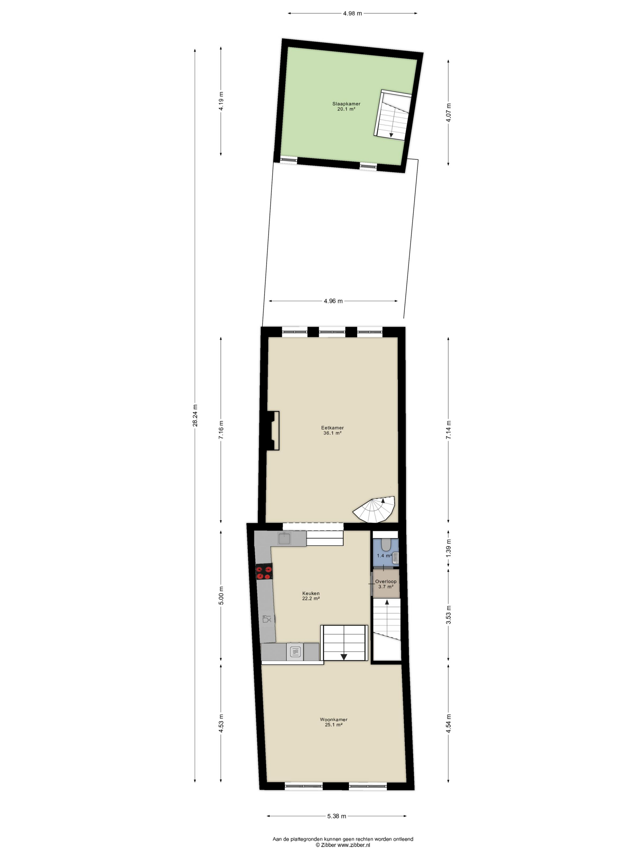
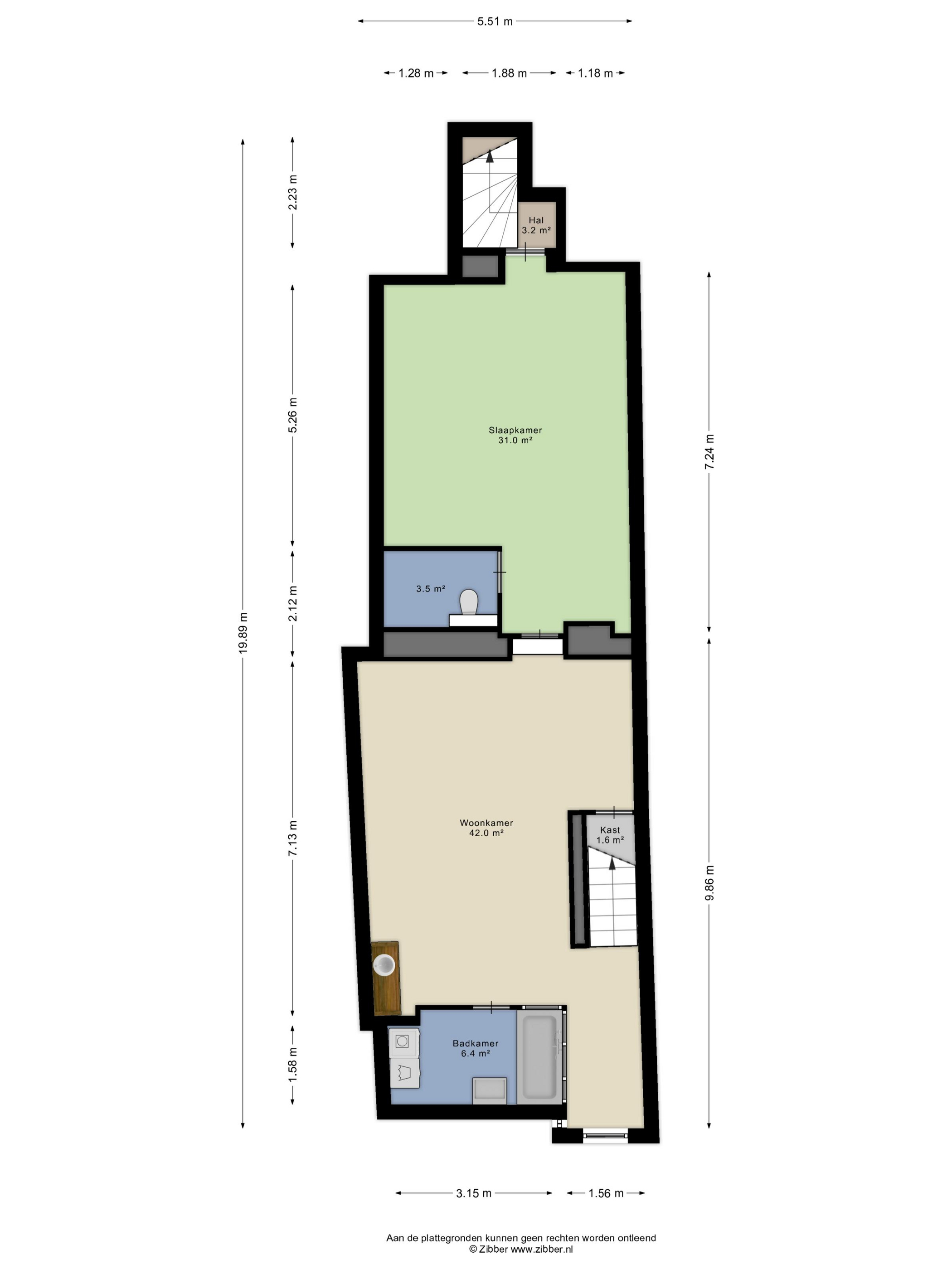
Distribuida en 350 m² de superficie habitable, la propiedad dispone de cuatro dormitorios y tres baños, además de una bodega con bóveda de cañón que aporta carácter y versatilidad. Un patio de inspiración ibicenca, una vivienda trasera y una terraza orientada a la luz de la tarde y el atardecer crean transiciones naturales entre el trabajo, el ocio y la vida en familia. Las modernas mejoras, como la ventilación mecánica, el aislamiento de tejados, el doble acristalamiento parcial y la calefacción central, optimizan la eficiencia, mientras que la parcela de 171 m² proporciona una sensación de amplitud cuidadosamente planificada en pleno entorno urbano.

Esta casa adosada en 's-Hertogenbosch invita a una forma de vida versátil, apta para residir, trabajar u hospedar. Ya se conciba como una amplia vivienda urbana, un B&B o una inversión, ofrece una experiencia arquitectónica y un ambiente excepcionales en pleno centro.

Características

Transferencia de propiedad
Precio solicitado
€ 1.650.000
Estado
beschikbaar
Aceptación
in overleg
Construcción
Tipo de casa
Herenhuis
Tipo de edificio
tussenwoning
Periodo de construcción
1606
Tipo de tejado
zadeldak
Dormitorios
4
Baños
3
Superficies y Volumen
Superficie habitable
412 m2
Otro espacio interior
0 m2
Espacio exterior adjunto al edificio
22 m2
Volumen en metros cúbicos
1461 m3
Tamaño del terreno
171 m2
Instalaciones
Mechanische ventilatie
In centrum
Baerz & Co Property Brochure

Folleto

Van Daal Makelaardij - Rijswijk

Heemraadstraat 4
2288 GX Rijswijk

janpaul@vandaalmakelaardij.nl
+31 70 2042288

www.vandaalmakelaardij.nl

Solicitud de información / Visita

Jan Paul van Daal profile image
Jan Paul van Daal
Real Estate Agent