Baerz & Co is een landelijk samenwerkingsverband van zorgvuldig geselecteerde boutique luxury makelaars. Samen vormen wij één netwerk, met één gedeeld aanbod. De woningen die u op onze website ziet, zijn afkomstig van alle aangesloten kantoren binnen Baerz & Co. Daardoor is niet ieder object rechtstreeks door ons kantoor in verkoop, maar door een gespecialiseerde collega binnen ons netwerk. Heeft u een woning gevonden die u aanspreekt en wilt u meer informatie? Dan brengen wij u graag persoonlijk in contact met de betreffende verkoopmakelaar, zodat u direct en zorgvuldig wordt begeleid.

AMSTELVEEN
Burgemeester Rijnderslaan 646 - 1185 MC
Países Bajos

€1,775,000
Superficie habitable
233m2
Tamaño del terreno
N/A
Dormitorios
3

Descripción

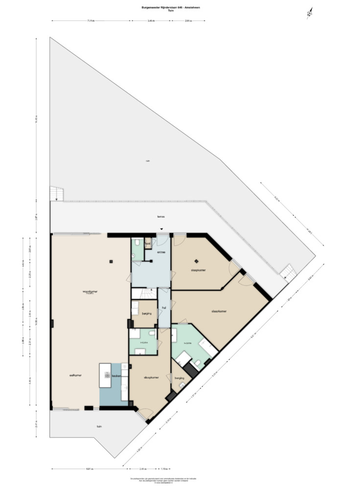
El apartamento de lujo en Amstelveen define un nuevo estándar de vida refinada en el prestigioso complejo The Mayor. Esta residencia en planta baja ofrece 233 m² de interiores meticulosamente acabados, completamente amueblada y lista para entrar a vivir, con una transición perfecta entre la sofisticación interior y los tranquilos espacios exteriores.

Una amplia zona de estar de casi 90 m² integra un salón diseñado a medida, una elegante zona de comedor y una cocina abierta moderna equipada con electrodomésticos de alta gama y una amplia isla. La luz natural fluye a través de grandes ventanales, conectando las estancias con un jardín privado en la parte delantera y una amplia terraza que se extiende a lo largo de toda la vivienda en la parte trasera.

Cuenta con tres amplios dormitorios, incluido un sereno dormitorio principal con su propio baño de lujo. Un segundo baño, ubicado en el centro, mantiene el mismo alto nivel de calidad. El almacenamiento es generoso, con dos trasteros internos y un trastero privado de 21 m² al que se accede tanto desde la vivienda como desde el garaje subterráneo, con dos plazas de aparcamiento exclusivas.

Entre los servicios destacados se incluyen conserjería M-Exclusive, lounge para residentes, gimnasio totalmente equipado y estudio de pilates, además de avanzados sistemas de seguridad. La reputación de calidad de The Mayor y su proximidad al corazón central de Amstelveen, instalaciones de primer nivel, transporte y rutas principales ofrecen una combinación de confort, privacidad y conveniencia. La climatización es eficiente, gracias a la calefacción por suelo radiante, bomba de calor, recuperación avanzada de calor y aislamiento completo con clasificación energética A_P.

Explora Amstelveen con Baerz, Tu Buscador y Asesor Personal de Propiedades de Confianza

Navegar el discreto y competitivo mercado de Amstelveen requiere conocimiento más allá de las ofertas públicas. Los asesores cualificados brindan acceso a ventas privadas, comprensión de la dinámica vecinal y experiencia en operaciones a medida. Su especialización garantiza diligencia exhaustiva, negociaciones optimizadas y transacciones internacionales fluidas, protegiendo los intereses de los clientes en cada fase.

Evita los errores comunes

Los compradores internacionales a menudo pierden tiempo valioso en listados en línea duplicados, desactualizados o engañosos, especialmente porque casi el 30% de las casas de lujo nunca aparecen en el mercado público. Los agentes del vendedor representan los intereses del vendedor, no los del comprador. Incluso solicitar información sobre una propiedad puede resultar en que un agente del vendedor te registre como su “cliente” sin tu consentimiento.
Con Baerz Property Finders & Advisors, evitas por completo todos estos errores. Trabajamos únicamente en tu nombre, ofreciendo representación independiente, orientación clara y acceso a todas las propiedades disponibles, incluidas oportunidades fuera del mercado que otros nunca llegan a ver.

¿Interesado en un Asesor Personal de Propiedades?

Te mostramos todas las casas disponibles en un solo lugar. No dudes en contactarnos para saber cómo podemos satisfacer tus necesidades y proteger tus intereses exclusivamente.

Características

Transferencia de propiedad
Precio solicitado
€ 1.775.000
Estado
beschikbaar
Aceptación
direct
Construcción
Tipo de casa
Benedenwoning
Tipo de edificio
appartement
Periodo de construcción
2023
Calificación energética
A+
Dormitorios
3
Baños
2
Superficies y Volumen
Superficie habitable
233 m2
Otro espacio interior
21 m2
Espacio exterior adjunto al edificio
58 m2
Volumen en metros cúbicos
877 m3
Instalaciones
Lift
Schuifpui
Glasvezel kabel
In woonwijk
 

Vídeos

Van Daal Makelaardij - Delft

Voldersgracht 33
2611 EV Delft

janpaul@vandaalmakelaardij.nl
+31 15 212 73 00

www.vandaalmakelaardij.nl

Solicitud de información / Visita

Jan Paul van Daal profile image
Jan Paul van Daal
Real Estate Agent

Comprar una propiedad de lujo en Amstelveen

Amstelveen ofrece residencias refinadas, ambiente cosmopolita y excelente conectividad. Su mezcla de zonas verdes, servicios internacionales y sofisticación atrae a compradores globales y familias que buscan privacidad y conexiones urbanas vivas.