Baerz & Co is een landelijk samenwerkingsverband van zorgvuldig geselecteerde boutique luxury makelaars. Samen vormen wij één netwerk, met één gedeeld aanbod. De woningen die u op onze website ziet, zijn afkomstig van alle aangesloten kantoren binnen Baerz & Co. Daardoor is niet ieder object rechtstreeks door ons kantoor in verkoop, maar door een gespecialiseerde collega binnen ons netwerk. Heeft u een woning gevonden die u aanspreekt en wilt u meer informatie? Dan brengen wij u graag persoonlijk in contact met de betreffende verkoopmakelaar, zodat u direct en zorgvuldig wordt begeleid.

BERGEN (NH)
Rondelaan 2 - 1861 ED
Países Bajos

€1,845,000
Superficie habitable
267m2
Tamaño del terreno
1310m2
Dormitorios
5

Descripción

Villa Bergen National Monument es un testimonio de la creatividad arquitectónica y la serenidad de principios del siglo XX, situada junto al borde del bosque. Esta villa en Bergen, diseñada en 1918 por J.B. van Loghem, celebra la interacción entre la forma geométrica y los detalles orgánicos. Con 267 m² de superficie habitable, cinco dormitorios y dos baños, la propiedad ofrece una rara combinación de presencia, procedencia y habitabilidad.

Al llegar por una amplia entrada privada, el tejado de paja y la mampostería original causan una impresión inmediata. El interior se distingue por sus suelos de roble macizo, chimeneas originales y armarios diseñados en época, conservando la sensación histórica e integrando el confort contemporáneo. La cocina, equipada con electrodomésticos Bosch y AEG, se abre a una terraza soleada y profundos jardines paisajísticos. Las zonas de servicio, el salón con ventana de bahía y la sala de televisión enfatizan la fluidez espacial y la luz, con calefacción por suelo radiante en zonas seleccionadas.

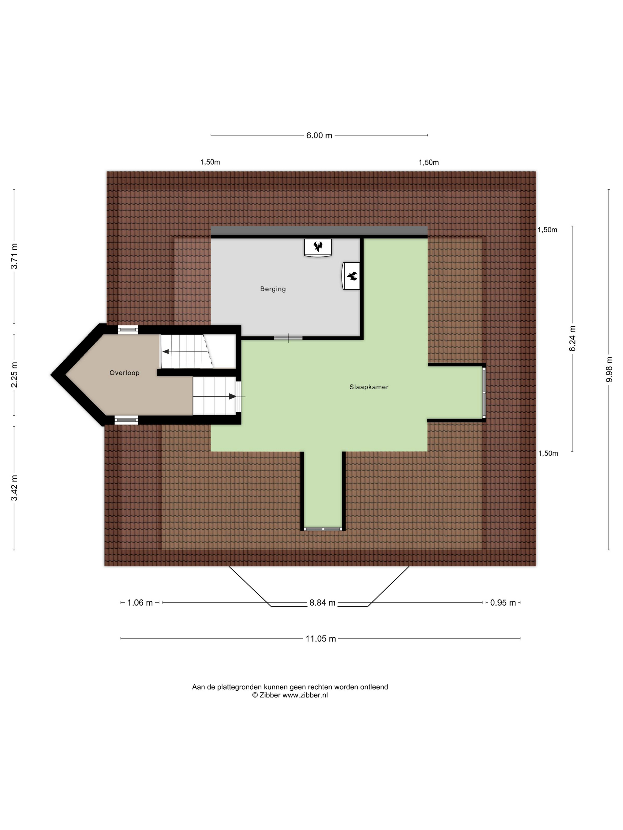
Subiendo la amplia escalera, la primera planta ofrece cuatro dormitorios, dos balcones y un despacho independiente con su propia chimenea. La segunda planta ofrece espacio flexible para dormitorios adicionales, hobbies o visitas. El distinguido torreón, parte del patrimonio arquitectónico de la villa, permite vistas panorámicas y una conexión tangible con historias de observación de estrellas y reuniones artísticas.

El aislamiento en techos y suelos, doble acristalamiento parcial y ocho paneles solares reflejan un compromiso constante con la sostenibilidad. Un sistema de calefacción híbrido, estación de carga y un amplio garaje aportan practicidad respetuosa con el clima. En una parcela de 1.310 m² con jardines cuidados, árboles maduros y varias terrazas, la villa ofrece una privacidad excepcional en plena naturaleza, conectada al centro cultural de Bergen, colegios reputados y la costa del Mar del Norte, a solo 4 km.

En Villa Bergen National Monument, los propietarios elegibles también pueden beneficiarse de atractivas subvenciones y fondos de restauración para mejorar la sostenibilidad, preservando el legado arquitectónico para futuras generaciones.

Explora Bergen (Holanda del Norte) con Baerz, Tu Buscador y Asesor Personal de Propiedades de Confianza

El mercado inmobiliario de Bergen se caracteriza por su privacidad, reglamentos locales específicos y oportunidades discretas fuera de mercado. Un asesor personal aporta acceso a propiedades poco publicitadas, negociación experta y profundo conocimiento de los requisitos patrimoniales. Su red facilita el contacto con arquitectos, abogados y proveedores de servicios de confianza, garantizando gestión y confidencialidad en cada etapa de la adquisición y la propiedad.

Evita los errores comunes

Los compradores internacionales a menudo pierden tiempo valioso en listados en línea duplicados, desactualizados o engañosos, especialmente porque casi el 30% de las casas de lujo nunca aparecen en el mercado público. Los agentes del vendedor representan los intereses del vendedor, no los del comprador. Incluso solicitar información sobre una propiedad puede resultar en que un agente del vendedor te registre como su “cliente” sin tu consentimiento.
Con Baerz Property Finders & Advisors, evitas por completo todos estos errores. Trabajamos únicamente en tu nombre, ofreciendo representación independiente, orientación clara y acceso a todas las propiedades disponibles, incluidas oportunidades fuera del mercado que otros nunca llegan a ver.

¿Interesado en un Asesor Personal de Propiedades?

Te mostramos todas las casas disponibles en un solo lugar. No dudes en contactarnos para saber cómo podemos satisfacer tus necesidades y proteger tus intereses exclusivamente.

Características

Paneles solares
Sistema de alarma
Transferencia de propiedad
Precio solicitado
€ 1.845.000
Estado
beschikbaar
Aceptación
in overleg
Construcción
Tipo de casa
Villa
Tipo de edificio
vrijstaande woning
Periodo de construcción
1918
Tipo de tejado
mansarde dak
Dormitorios
5
Baños
2
Superficies y Volumen
Superficie habitable
267 m2
Otro espacio interior
9 m2
Espacio exterior adjunto al edificio
27 m2
Espacio de almacenamiento externo
21 m2
Volumen en metros cúbicos
1024 m3
Tamaño del terreno
1310 m2
Instalaciones
Mechanische ventilatie
Alarminstallatie
Tv kabel
Rookkanaal
Dakraam
Glasvezel kabel
Zonnepanelen
Aan bosrand
In centrum
Beschutte ligging
In bosrijke omgeving
Baerz & Co Property Brochure

Folleto

Vídeos

Van Daal Makelaardij - Rijswijk

Heemraadstraat 4
2288 GX Rijswijk

janpaul@vandaalmakelaardij.nl
+31 70 2042288

www.vandaalmakelaardij.nl

Solicitud de información / Visita

Jan Paul van Daal profile image
Jan Paul van Daal
Real Estate Agent

Comprar una propiedad de lujo en Bergen (Holanda del Norte)

Bergen ofrece una comunidad sofisticada y acogedora enmarcada por la belleza natural y la riqueza cultural. Los residentes disfrutan de comodidades excepcionales, servicios exclusivos y un equilibrio armonioso entre privacidad y vida social, convirtiendo Bergen en un destino distinguido para los compradores internacionales más exigentes.