Baerz & Co is een landelijk samenwerkingsverband van zorgvuldig geselecteerde boutique luxury makelaars. Samen vormen wij één netwerk, met één gedeeld aanbod. De woningen die u op onze website ziet, zijn afkomstig van alle aangesloten kantoren binnen Baerz & Co. Daardoor is niet ieder object rechtstreeks door ons kantoor in verkoop, maar door een gespecialiseerde collega binnen ons netwerk. Heeft u een woning gevonden die u aanspreekt en wilt u meer informatie? Dan brengen wij u graag persoonlijk in contact met de betreffende verkoopmakelaar, zodat u direct en zorgvuldig wordt begeleid.

LEIDEN
Fruinlaan 8 - 2313 ER
Países Bajos

€1,375,000
Superficie habitable
220m2
Tamaño del terreno
358m2
Dormitorios
7

Descripción

La casa independiente en Leiden representa una vida sustancial en Fruinlaan, una de las avenidas más distintivas de la ciudad. Esta propiedad ofrece 220 m² de superficie habitable, distribuidos cuidadosamente en varios niveles, con un perfil arquitectónico único y el carácter refinado de los años veinte. Ubicada en una amplia parcela de 358 m², la vivienda está rodeada de jardines en tres de sus lados, permitiendo una transición fluida entre los espacios interiores y exteriores gracias a varias puertas francesas y accesos directos.

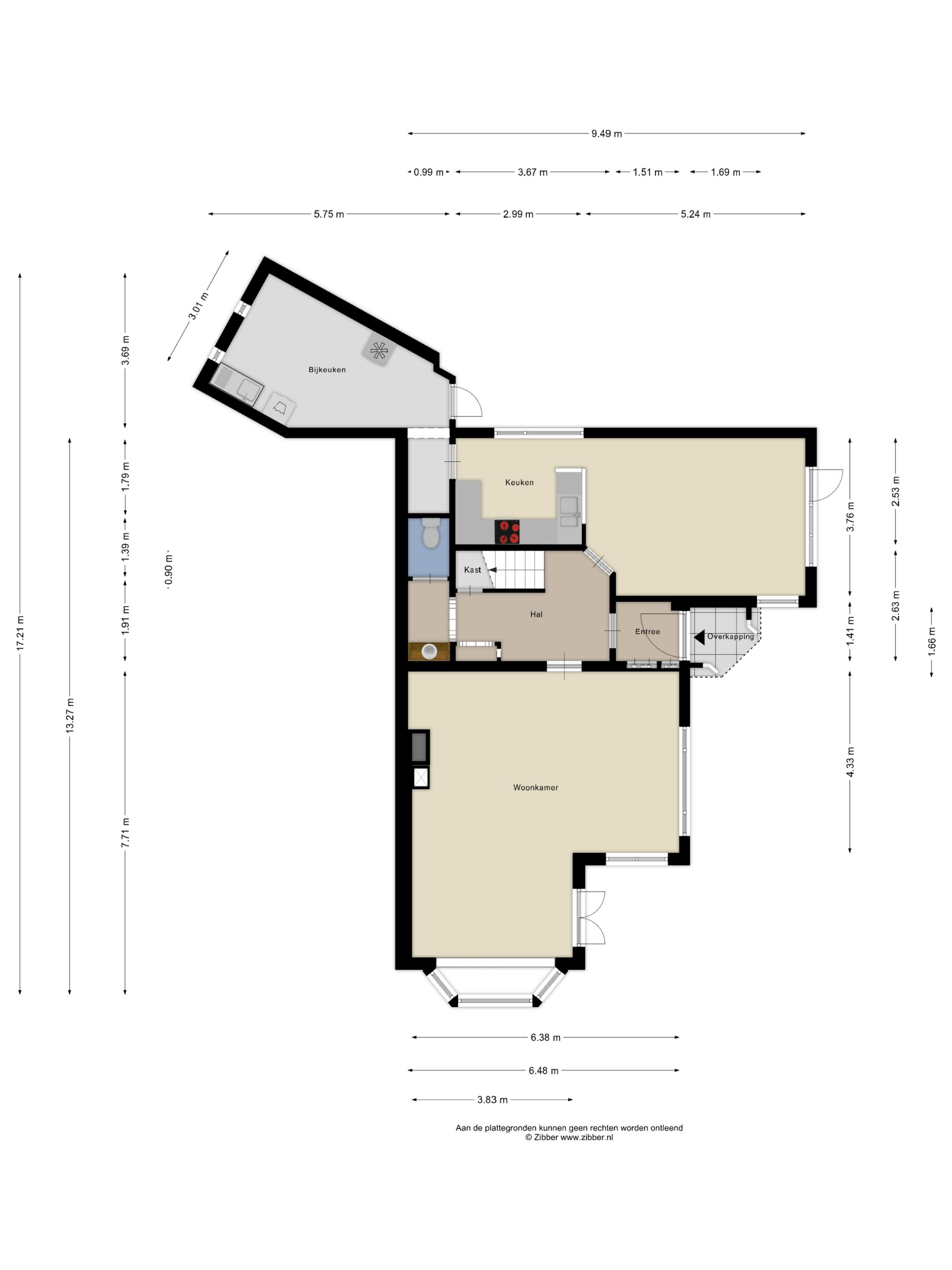
La planta baja revela un vestíbulo de entrada señorial con vidrieras originales, paneles de madera auténticos y una escalera central que conecta todas las estancias principales. El salón en forma de L dispone de chimenea y acceso al jardín, mientras que la cocina trasera y el área de lavandería adyacente se abren directamente al exterior, facilitando reuniones y la comodidad diaria. Siete dormitorios ocupan las plantas superiores, incluyendo habitaciones con acceso directo a una amplia terraza en la azotea y un ático lúdico con tejados de diferentes alturas.

Un garaje independiente ofrece espacio para un coche y dispone de una amplia buhardilla para almacenaje o uso de invitados. Entre sus características destacan la ventilación mecánica, cable de fibra óptica y doble acristalamiento en la mayoría de los espacios. La vivienda cuenta con protección como monumento histórico y está equipada con calefacción central. Esta casa independiente en Leiden logra una combinación considerada de privacidad, patrimonio y espacios iluminados por la luz natural.

Explora Leiden con Baerz, Tu Buscador y Asesor Personal de Propiedades de Confianza

Orientarse en el mercado de Leiden requiere conocimiento de las tradiciones locales, normativas y ofertas discretas fuera de mercado. Los asesores expertos aportan acceso a carteras exclusivas, negocian con destreza y brindan acompañamiento integral en las transacciones. Su capacidad para anticipar tendencias, identificar oportunidades únicas y proteger los intereses del cliente garantiza ventajas estratégicas y tranquilidad durante todo el proceso de adquisición.

Evita los errores comunes

Los compradores internacionales a menudo pierden tiempo valioso en listados en línea duplicados, desactualizados o engañosos, especialmente porque casi el 30% de las casas de lujo nunca aparecen en el mercado público. Los agentes del vendedor representan los intereses del vendedor, no los del comprador. Incluso solicitar información sobre una propiedad puede resultar en que un agente del vendedor te registre como su “cliente” sin tu consentimiento.
Con Baerz Property Finders & Advisors, evitas por completo todos estos errores. Trabajamos únicamente en tu nombre, ofreciendo representación independiente, orientación clara y acceso a todas las propiedades disponibles, incluidas oportunidades fuera del mercado que otros nunca llegan a ver.

¿Interesado en un Asesor Personal de Propiedades?

Te mostramos todas las casas disponibles en un solo lugar. No dudes en contactarnos para saber cómo podemos satisfacer tus necesidades y proteger tus intereses exclusivamente.

Características

Transferencia de propiedad
Precio solicitado
€ 1.375.000
Estado
beschikbaar
Aceptación
in overleg
Construcción
Tipo de casa
Herenhuis
Tipo de edificio
twee onder een kapwoning
Periodo de construcción
1930
Calificación energética
F
Tipo de tejado
zadeldak
Dormitorios
7
Baños
2
Superficies y Volumen
Superficie habitable
220 m2
Otro espacio interior
8 m2
Espacio exterior adjunto al edificio
11 m2
Espacio de almacenamiento externo
22 m2
Volumen en metros cúbicos
806 m3
Tamaño del terreno
358 m2
Instalaciones
Mechanische ventilatie
Tv kabel
Rookkanaal
Glasvezel kabel
Aan rustige weg
In woonwijk
Vrij uitzicht
Baerz & Co Property Brochure

Folleto

Vídeos

Van Daal Makelaardij - Delft

Voldersgracht 33
2611 EV Delft

janpaul@vandaalmakelaardij.nl
+31 15 212 73 00

www.vandaalmakelaardij.nl

Solicitud de información / Visita

Jan Paul van Daal profile image
Jan Paul van Daal
Real Estate Agent

Comprar una propiedad de lujo en Leiden

Leiden ofrece un patrimonio inigualable, cultura dinámica y servicios exclusivos, creando un entorno atractivo para residentes internacionales. Con hogares refinados, academia vibrante y lujo discreto, esta ciudad a orillas del canal brinda un estilo de vida sofisticado y global.