Baerz & Co is een landelijk samenwerkingsverband van zorgvuldig geselecteerde boutique luxury makelaars. Samen vormen wij één netwerk, met één gedeeld aanbod. De woningen die u op onze website ziet, zijn afkomstig van alle aangesloten kantoren binnen Baerz & Co. Daardoor is niet ieder object rechtstreeks door ons kantoor in verkoop, maar door een gespecialiseerde collega binnen ons netwerk. Heeft u een woning gevonden die u aanspreekt en wilt u meer informatie? Dan brengen wij u graag persoonlijk in contact met de betreffende verkoopmakelaar, zodat u direct en zorgvuldig wordt begeleid.

OLDENZAAL
Hoge Haerlaan 29 - 7573 BV
Países Bajos

€1,295,000
Superficie habitable
244m2
Tamaño del terreno
751m2
Dormitorios
5

Descripción

Esta casa independiente en Oldenzaal goza de una ubicación privilegiada y exhibe las magníficas líneas de la arquitectura de los años treinta combinadas con el confort contemporáneo. Diseñada por C. Hardeman y completamente renovada en 2003, esta residencia unifamiliar ofrece una superficie habitable de 244 m² sobre una generosa parcela de 751 m². La primera impresión revela una fachada atemporal, mejorada en el interior por detalles auténticos y una luminosidad natural excepcional en todos los espacios.

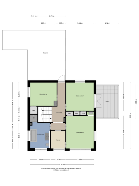
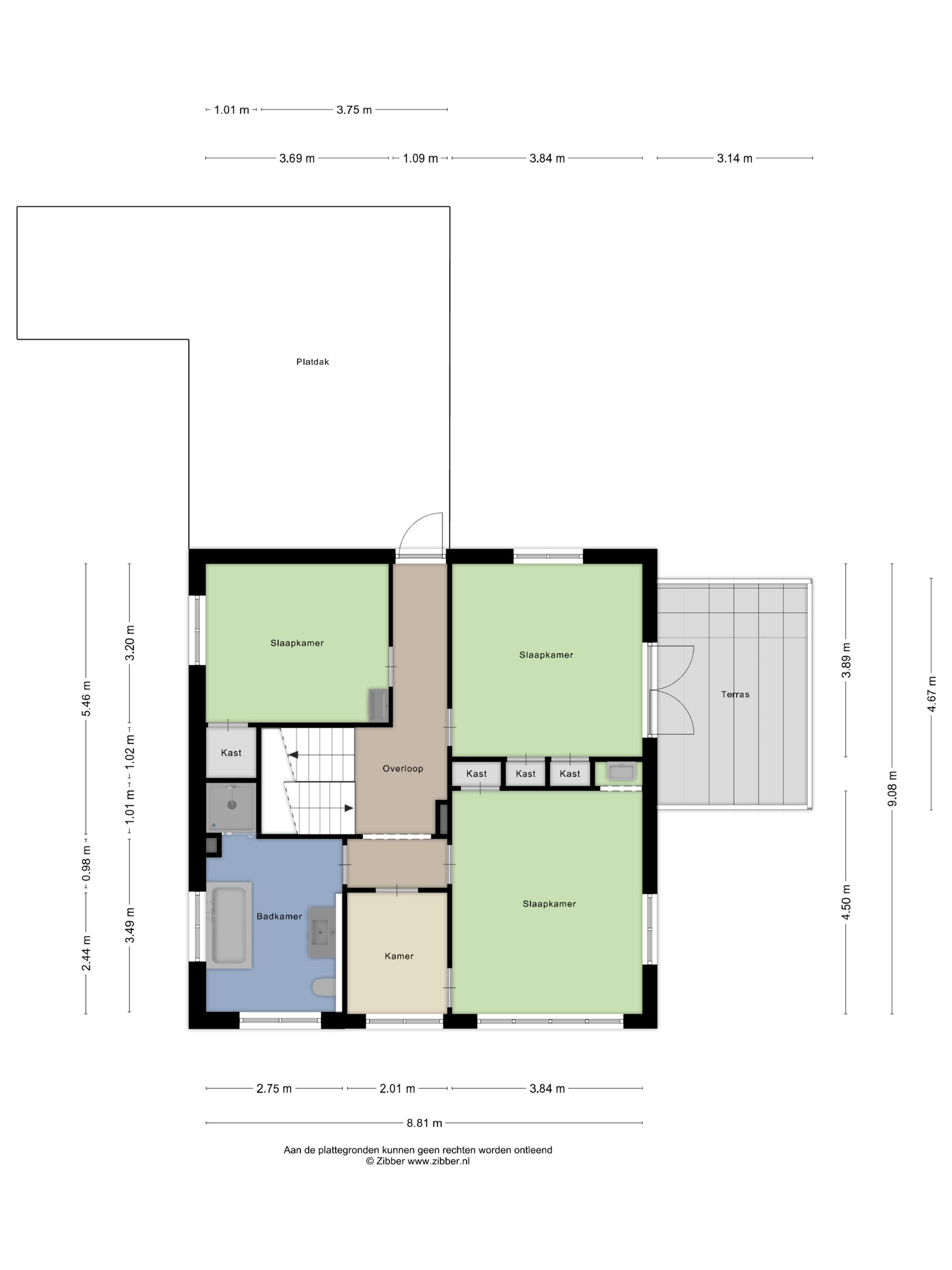
Vivir en Hoge Haerlaan significa disfrutar de tranquilidad y amplitud con todas las comodidades cotidianas a poca distancia. La planta baja le da la bienvenida con una entrada cubierta y un amplio vestíbulo, que conduce a una oficina en casa enmarcada por un elegante ventanal. Los amplios ventanales y el invernadero del salón permiten la entrada de luz natural y se abren al tranquilo jardín orientado al sureste, enriquecido con varias terrazas y zonas ajardinadas en distintos niveles. La cocina, equipada con chimenea y electrodomésticos de alta gama, conecta con una terraza cubierta. Los espacios prácticos incluyen un sótano de altura para despensa, lavadero y un amplio garaje.

La casa cuenta con cinco dormitorios distribuidos en tres plantas, incluyendo una suite principal con balcón y vistas al entorno campestre. Dos baños proporcionan comodidad, mientras que la carpintería original, la calefacción parcial por suelo radiante, los paneles solares, el aislamiento integral y la clase energética C aumentan su atractividad. En cada rincón se perciben privacidad, calidad arquitectónica y continuidad.

Explora Oldenzaal con Baerz, Tu Buscador y Asesor Personal de Propiedades de Confianza

El mercado residencial de lujo en Oldenzaal requiere experiencia y conexiones, ya que muchas operaciones se realizan fuera del mercado abierto. Asesores experimentados acceden a propiedades exclusivas, negocian hábilmente y acompañan al cliente en todos los aspectos legales y culturales, garantizando un proceso confidencial y fluido.

Evita los errores comunes

Los compradores internacionales a menudo pierden tiempo valioso en listados en línea duplicados, desactualizados o engañosos, especialmente porque casi el 30% de las casas de lujo nunca aparecen en el mercado público. Los agentes del vendedor representan los intereses del vendedor, no los del comprador. Incluso solicitar información sobre una propiedad puede resultar en que un agente del vendedor te registre como su “cliente” sin tu consentimiento.
Con Baerz Property Finders & Advisors, evitas por completo todos estos errores. Trabajamos únicamente en tu nombre, ofreciendo representación independiente, orientación clara y acceso a todas las propiedades disponibles, incluidas oportunidades fuera del mercado que otros nunca llegan a ver.

¿Interesado en un Asesor Personal de Propiedades?

Te mostramos todas las casas disponibles en un solo lugar. No dudes en contactarnos para saber cómo podemos satisfacer tus necesidades y proteger tus intereses exclusivamente.

Características

Paneles solares
Transferencia de propiedad
Precio solicitado
€ 1.295.000
Estado
beschikbaar
Aceptación
in overleg
Construcción
Tipo de casa
Eengezinswoning
Tipo de edificio
vrijstaande woning
Periodo de construcción
1928
Calificación energética
C
Tipo de tejado
tentdak
Dormitorios
5
Baños
2
Superficies y Volumen
Superficie habitable
244 m2
Otro espacio interior
11 m2
Espacio exterior adjunto al edificio
34 m2
Espacio de almacenamiento externo
29 m2
Volumen en metros cúbicos
948 m3
Tamaño del terreno
751 m2
Instalaciones
Tv kabel
Glasvezel kabel
Zonnepanelen
Natuurlijke ventilatie
Aan rustige weg
In woonwijk
Baerz & Co Property Brochure

Folleto

Vídeos

Panorámicas 360

360°
360 Panorama - Hoge Haerlaan 29
360°
360 Panorama - Hoge Haerlaan 29
360°
360 Panorama - Hoge Haerlaan 29
360°
360 Panorama - Hoge Haerlaan 29
360°
360 Panorama - Hoge Haerlaan 29
360°
360 Panorama - Hoge Haerlaan 29
360°
360 Panorama - Hoge Haerlaan 29
360°
360 Panorama - Hoge Haerlaan 29
360°
360 Panorama - Hoge Haerlaan 29
360°
360 Panorama - Hoge Haerlaan 29
360°
360 Panorama - Hoge Haerlaan 29
360°
360 Panorama - Hoge Haerlaan 29
360°
360 Panorama - Hoge Haerlaan 29
360°
360 Panorama - Hoge Haerlaan 29
360°
360 Panorama - Hoge Haerlaan 29
360°
360 Panorama - Hoge Haerlaan 29
360°
360 Panorama - Hoge Haerlaan 29
360°
360 Panorama - Hoge Haerlaan 29
360°
360 Panorama - Hoge Haerlaan 29
360°
360 Panorama - Hoge Haerlaan 29
360°
360 Panorama - Hoge Haerlaan 29
360°
360 Panorama - Hoge Haerlaan 29
360°
360 Panorama - Hoge Haerlaan 29
360°
360 Panorama - Hoge Haerlaan 29

Van Daal Makelaardij - Delft

Voldersgracht 33
2611 EV Delft

janpaul@vandaalmakelaardij.nl
+31 15 212 73 00

www.vandaalmakelaardij.nl

Solicitud de información / Visita

Jan Paul van Daal profile image
Jan Paul van Daal
Real Estate Agent

Comprar una propiedad de lujo en Oldenzaal

Oldenzaal ofrece privacidad, riqueza cultural y servicios de primer nivel. Su oferta exclusiva, ambiente acogedor y proyección internacional atraen a residentes exigentes deseosos de comodidad, seguridad y elegancia discreta.